Beskrivning

Stybbet

I natursköna Norraby, där landskapet möter sjön Sommen, växer ett nytt bostadsområde fram med friliggande enplanshus som harmoniskt samspelar med sin omgivning. Här skapar vi en bebyggelse som är både varierad och elegant – med fokus på livskvalitet, trivsel och mänsklig skala. Husen erbjuder en generös och flexibel boendemiljö med tydlig villakaraktär. Här bor du i ett arkitektoniskt genomarbetat hem, i ett område där naturen, utsikten och grannskapet får lika stort utrymme.
De sex friliggande enplansvillorna i kvarteret Stybbet har utformats med stor omsorg utifrån platsens unika förutsättningar. Belägna längs Jubileumsvägen öppnar husen upp mot Sommens glittrande vatten och skapar samtidigt tydliga samband med den omgivande naturen i väster. Ett karaktärsfullt taklandskap med mjukt böljande sedumtak förstärker intrycket av en bebyggelse som smälter in i det omgivande landskapet.
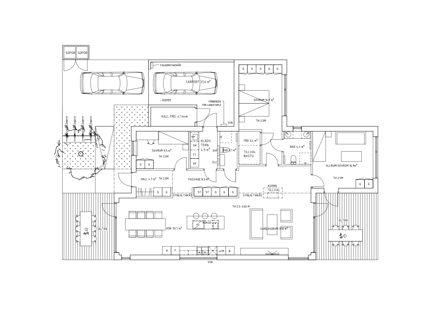
Varje hus präglas av en genomtänkt struktur, där tre förskjutna volymer ger både visuell variation och intressanta rumsligheter – inifrån såväl som utifrån. En rymlig entré med längsgående korridor delar hemmet i två tydliga zoner. Den sociala delen, med en öppen planlösning med kök, matplats och vardagsrum, har stora glaspartier som vetter mot gatan och sjön. Den mer privata zonen innehåller tre sovrum, två badrum, tvättstuga och förråd – med master bedroom som har direktkontakt med en avskild trädgård och eget badrum. Takhöjden i vardagsrum och kök når upp till 3,65 meter med synlig nock, vilket skapar en luftig och ljus känsla. En sekundär entré till tvättstugan finns via carporten. Volymen med stort sovrum samt carport kan förlängas, vilket då möjliggör 4 sovrum samt ett allrum.
Materialvalen är noggrant utvalda för att kombinera estetik, hållbarhet och funktion. Fasaderna kläs i järnvitriolbehandlad furu, som åldras vackert och får en naturligt grånande ton. Taken är klädda med sedum, vilket inte bara är estetiskt tilltalande utan också främjar biologisk mångfald, förbättrar dagvattenhanteringen och bidrar till energieffektivitet – svalkande sommartid, isolerande vintertid. Husen är förberedda för solceller och utrustade med plats för laddstolpe till elbil. Energisystemet med FTX-ventilation och låga U-värden ger god energieffektivitet och ett behagligt inomhusklimat – året runt.

Planritning

Husen i kvarteret Stybbet är äganderätter om 140 kvadratmeter fördelade på 3 sovrum, 2 badrum, hall, groventré, kök och vardagsrum, med möjlighet till ytterligare ett sovrum. Husens tak kläs i sedum och carportarna är utrustade med plats för laddstolpe till elbil. Trädgården färdigställs med sådd gräsmatta, planterade häckar och träd, samt planlagda uppfarter. 

Kontakt

Kontaktpersoner

Kvarteret Stybbet uppförs av SE-Bygg i samarbete med arkitektfirman Krook & Tjäder och mäklarbyrån Svensk Fastighetsförmedling i Tranås.

Josefine Gustafsson

Franchisetagare och reg. fastighetsmäklare på Svensk Fastighetsförmedling i Tranås.

Jens Setterberg

Arkitekt på Krook & Tjäder.

Tim Carlson

Projektansvarig på SE-Bygg.